Verona La Citta De Amore - Micaela -single Detached

Sta. Rosa Tagytay Brgy. Pook Ii Silang, Tagaytay City, Cavite, Region IV-a (Calabarzon)

Project
Php 88,614 / mo
Php 13,242,751 (TCP)

BEDROOMS

4

BATHROOMS

4

LOT AREA

176 sqm

FLOOR AREA

178.7 sqm

DESCRIPTION

Name of Project: Verona
Location: Sta. Rosa Tagytay Brgy. Pook Ii Silang.

Landmarks/accessibility:
-30 mins. drive to Mariano C. Anacay Elementary School
-37 mins. drive to Kaong National High School
-21 mins. drive to Estrella Hospital
-22 mins. drive to St. Benedict Parish
-17 mins drive to Ayala Malls Solenad 2
-12 mins. drive to QualiMed Hospital Sta. Rosa
-09 mins. drive to Carolina Mall
-08 mins. drive to San Antonio De Padua Parish Church

Transportation Details:
-Motorcycle and Tricycle going to Highway
-PUJ going to Malls, Hospitals Etc.









Payment Financing Scheme

SAMPLE COMPUTATION FOR BANK FINANCING:

Total Contract Price: PHP 13,242,751.00
1.)20% Equity/Downpayment: PHP 2,648,550.20
2.)Reservation Fee: PHP 50,000.00 (Deductible From Downpayment)
3.)Net Downpayment: PHP 2,598,550.20 Payable For 18 Months
PHP 144,363.90/month
4.)80% Loanable Amount: PHP 10,594,200.80

ESTIMATED BANK LOAN COMPUTATION:
* 20 years @ Php 88,614/month
* 15 years @ Php 101,244/month
* 10 years @ Php 128,537/month
* 5 years @ Php 214,812/month

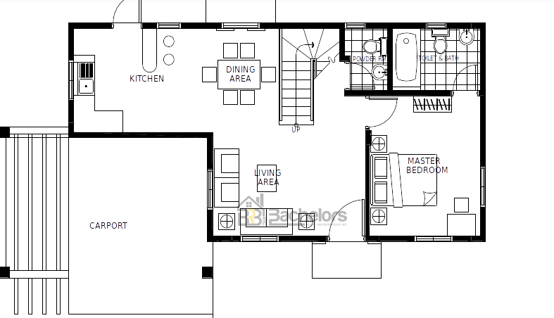
PROPERTY DETAILS/FEATURES
  • Lot Area: 176sqm
  • Floor Area: 178.70sqm (expandable)
  • 4 Bedrooms
  • 4 Toilet And Bath
  • Living Area
  • Dining Area
  • Kitchen Area
  • Family Area
  • Powder Room
  • 2 Carport
  • Lanai
  • Balcony
AMENITIES
  • 15 Mins Away To Tagaytay
  • Clock Tower Clubhouse
  • Swimming Pool
  • Basketball Court
  • Hiking Trail
  • Shop Houses
OTHER INFO

Your lovew story with the good life begins at Verona in Silang – Sta. Rosa Inspired by its namesake the ITALIAN city of Verona. Your Suntrust Community is Filled with Beauty and Romance.